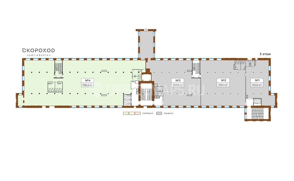
Деловой квартал Скороход - Строение 4, блок 798.4 кв. м
Класс B+
191 520 000 руб.
Класс B+
798 м2
3 этаж
г. Санкт-Петербург, Заставская ул, 33
 
				
													| Этаж | 3 | 
| Уборка включена в стоимость | нет | 
| Состояние помещения | Без отделки | 
| Планировка | Открытая | 
| НДС вкл. в ставку | да | 
| Электроэнергия включена | нет | 
| К/У включены | нет | 
| Операционные услуги | нет | 
| Доступ в интернет входит в ставку | нет | 
| Кафе для арендаторов | да | 
| Класс | B+ | 
| Тип объекта недвижимости | Бизнес центр | 
| Тип предложения | Продажа | 
| Этажей в здании | 6, 2 | 
| Год постройки | 2026 | 
| Статус объекта | Строящийся | 
| Высота потолка, м. | 4.50 | 
| Лифты в заднии | да | 
| Тип паркинга | Наземная | 
| Вентиляция | Приточно-вытяжная | 
| Кондиционирование | чиллер-фанкойл | 
| Общая площадь, кв.м. | 10134.00 | 
| Район города | Московский | 
| Метро | Московские ворота | 
Продажа офисных помещений от 380 кв.м в лофт-проекте СКОРОХОД, Строение 4
Строение 4 входит в первую очередь проекта редевелопмента бывшей промплощадки СКОРОХОД и будет реализовано в качестве бизнес-центра класса В+
ИНЖЕНЕРНЫЕ СИСТЕМЫ
- газовая котельная на территории;
- разводка отопления с радиаторами;
- водоснабжение, водоотведение, вентиляция, кондиционирование, электроснабжение, СКС: установка оборудования и магистральные сети с разводкой до границы помещений
- бесшумные пассажирские лифты
СОСТОЯНИЕ ЗДАНИЯ
- чистовая отделка мест общего пользования
- отреставрированные кирпичные фасады;
- новая кровля с утеплением
- новые окна и входные двери в едином стиле
СОСТОЯНИЕ ПОМЕЩЕНИЙ ПРИ ПЕРЕДАЧЕ 
- Shell&Core - подготовка под чистовую отделку
- пескоструйная обработка кирпичных стен, колонн, потолков
- выравнивающая стяжка пола
ЭНЕРГООБЕСПЕЧЕНИЕ
- 2 категория электроснабжения;
- Выделенная мощность на здание 630 кВт.;
Срок реализации объекта - 4 кв. 2026
Произошла ошибка.
Спасибо, ваш отзыв будет опубликован после проверки модератором.
Отзывов еще нет. Ваш будет первым.

Спасибо!
Мы будем присылать Вам похожие объекты.
Что-то пошло не так. Попробуйте еще раз или свяжитесь с нами по телефону +7 812 332-53-73 .
Заметили ошибку? Выделите текст и нажмите CTRL+ENTER
Сообщить об ошибке

Спасибо!
Что-то пошло не так. Попробуйте еще раз.
|  | ||